644 mq
3
Locali commerciali e laboratorio, su strada ad alto traffico.
Il compendio immobiliare in Vendita si trova nella zona commerciale di Palombara Sabina (RM), nelle immediate vicinanze dei supermercati Conad e Eurospin, in una posizione vantaggiosa rispetto alla viabilità principale.
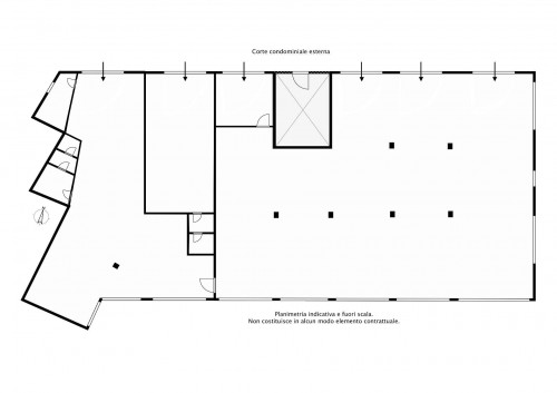
La proprietà, in un edificio condominiale con due piani fuori terra e un piano seminterrato, occupa tutto il piano terra ed è composta da due locali a destinazione commerciale (C/1), di circa 310 mq e 50 mq, che possono essere diversamente frazionati ovvero fusi in un'unica unità, e da un locale a destinazione laboratorio (C/3) di circa 115mq; tutti sono dotati di servizi igienici. L'altezza media dei soffitti è di 3,9 metri.
Sono presenti sei vetrine - con larghezza utile di circa 3 metri - con affaccio sulla corte condominiale posta frontalmente alla via principale e vetrate alte sui tutti i lati scoperti opposti, che consentono un'ottima illuminazione naturale, non pregiudicando l'uso delle pareti.
L'interno dei locali commerciali è attualmente composto da unici ambienti e necessitano di un intervento di riqualificazione, anche in funzione dello specifico utilizzo a cui verranno destinati. Nel locale laboratorio è presente una cella frigorifera utilizzata nell'ultima gestione.
Nella prospiciente e comoda area condominiale esterna, recintata e asfaltata, destinata a parcheggio, sono presenti 12 posti auto di proprietà inclusi nella Vendita.

644 mq
3